「設計と現場日誌」
構造のお話
2016年07月11日
木造住宅の構造(骨組み)の話です。
当社は自由設計の注文住宅を建てているのですが(さらに言えば自然素材を多く使った木の家)、制限もあります。それは構造の部分。最近の話題で言えば地震に強い家と言うことです。
地震に強く、長年の重みに耐えるような骨組みにするには、実は制限があるのです。何でも自由に出来るわけではないのです。極端に言えば二階の方が一階より極端に大きいような家はできません。
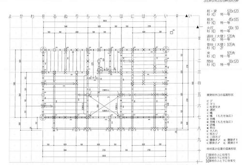
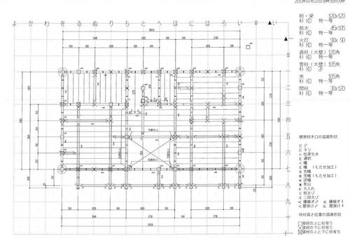
丈夫な骨組みにするには、設計段階(間取りを考えるとき)から骨組みをある程度頭に入れながら考える必要があるのです。
その上で、筋交いが入った耐力壁の配置や量、梁材の断面寸法などを決めて骨組みの設計(架構といいます)が完了します。
現場に木材が搬入される前にはバックグラウンドでこんな作業がおこなわれているんですよね。
いつもブログをお読みいただきありがとうございます。
住まい作りに役立つガイドブックを無料で差し上げています。ご希望の方はこちらからお申し込みください。














