リフォーム施工事例
軽量鉄骨の家に新設したみんなが使うトイレ 仙台市泉区Y様

リフォーム概要
- 【住所】仙台市泉区
- 【リフォーム内容】
トイレの新設工事 塾教室への模様替え
家づくりへの思い
奥様は学習塾の講師をなさっています。今までは教室を借りていたのですが、中古住宅購入を機に自宅二階で教室を開くことにしました。そのため、教室スペースの模様替えと生徒さん専用のトイレの新設を計画しました。
リフォーム施工前
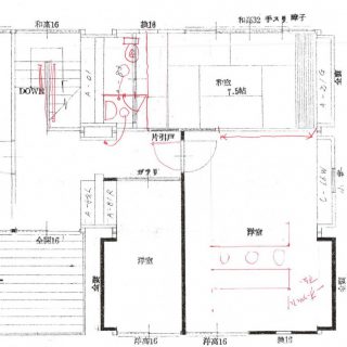
トイレスペースとして目をつけたのは二階の階段ホール脇の和室押入。この建物は軽量鉄骨のユニット工法でしたが、耐力壁になっている壁以外は間仕切りの変更が可能でした。襖になっている面を壁に改造、左側の壁をトイレの入口にします。
学習塾の教室を開く場所です。壁の奥は和室になっていますが、この間仕切り壁を撤去して広く使いたいというご要望でした。図面を調べてみたところ、元々は引戸で仕切ってあったようで前の持ち主の方がリフォームして塞いだ壁だと言うことがわかりました。
リフォーム施工中
内装クロスや床のクッションフロアができあがり、器具付けです。自動水栓付の手洗いにしましたが、大勢の生徒さんが使うため中には水を出しっぱなしにしてしまう子供もいるのだそうです。その対策として自動水栓付でと指定されました。
お客様の声
(もっとこうすれば良かったという点)
こちらのイメージしていた以上の仕上がりで、もっとこうすれば~ということは全くありませんでした。打ち合わせの段階から”こうしたい”という希望を丁寧に聞いていただいてできることできないこともプロの目からアドバイスもしていただいて感謝しております。
(工事をして良かった点)
工事から5年以上経過しても床・壁・トイレ・手洗いすべて清潔に使用できています。
お掃除もしやすく汚れも付きにくく トイレは毎日気持ちよく使用できるのが一番です。
今後、床の張り替えなども必要になってくると思いますのでぜひまたエアサイクルさんにお願いしたいと思います。
TOTOさんのトイレも大変使いやすいです。自動手洗いも故障なく助かっています。
担当者から一言
軽量鉄骨造は、二階の増築や耐力壁の移動、撤去など構造の変更をすることはほぼできませんが、今回のような間仕切り壁の新設、撤去は比較的容易に行えます。
二階の二部屋をつなげて塾の教室をつくる今回の工事でしたが、順調に工事を完了することができました。
トイレ内部の寸法や配管などハード面は私たちでご提案させていただきましたが、インテリアに関しては奥様のご意見が生きています。
ピンクのトイレ本体にぴったりマッチしたクロスの選定や、写真では写っていませんでしたが白の入口ドア、トイレマットや手洗いタオルなど子供さんが喜びそうな雰囲気作りがお上手です。
この工事後、一階のトイレ工事、洗面台の交換、台所換気扇の交換などいろいろとご注文をいただいています。ありがとうございます。



























